Startseite
Projekte
Kreditinstitute
Gewerbe- & Wohnbauten
Öffentliche Bauten
News
Team
Stellenanzeigen
Kontakt
Impressum
Datenschutz
Gewerbe- & Wohnbauten
Neubau einer Gewerbehalle mit Büronutzung und Betriebswohnung
Visualisierung Rückansicht
Visualisierung Bürobereich
Visualisierung Halle
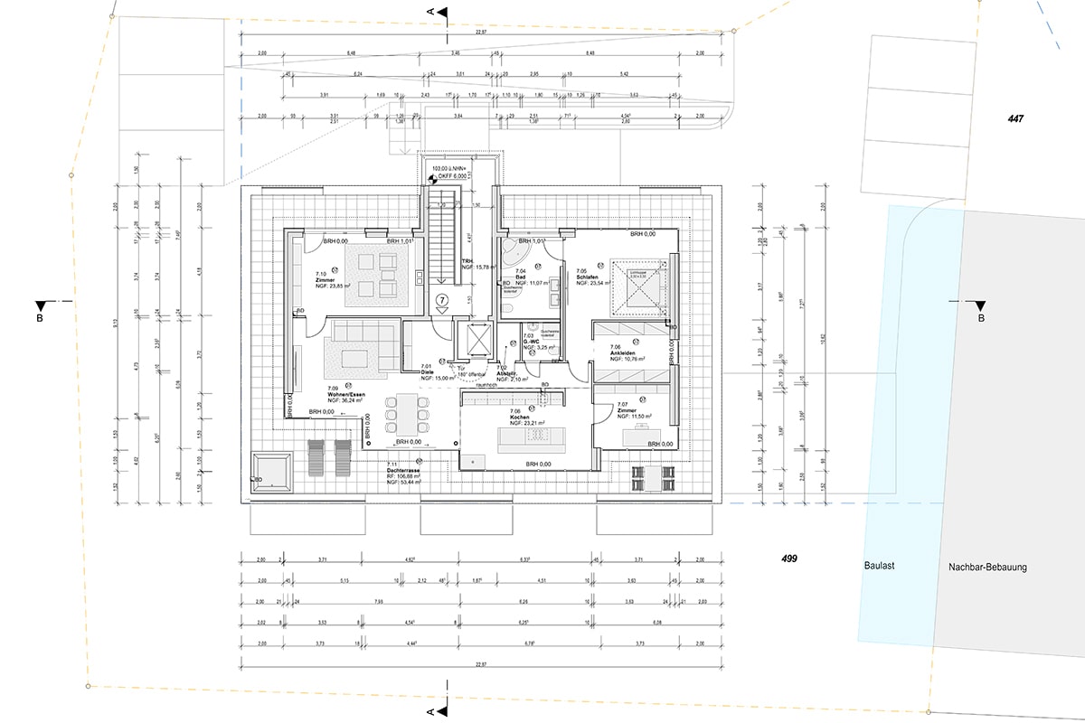
Neubau eines Mehrfamilienhauses mit 7 Wohneinheiten
Visualisierung Gartenansicht
Visualisierung Wohnung
Ansichten
Grundriss Dachgeschoss
Aufstockung und energetische Sanierung eines Bestandsgebäudes
Bauleitung Neubau NL in Oberhausen
Außenperspektive
Eingangsbereich
Halle
Umbau einer Kaffeerösterei
Café
Café
Café
Bartheke
Lager
Neubau einer Lagerhalle mit Büronutzung
Umbau eines Mehrfamilienhauses
Straßenansicht
Visualisierung - Gartenansicht
Gartenansicht
Bestandsaufnahme und Digitalisierung diverser Mehrfamilienhäuser
3D-Gebäudeschnitt
Grundriss
Außenperspektive
Außenperspektive
Neubau einer Behindertenwerkstatt zur Verarbeitung von Papierwerkstoffen
Anlieferung Papierlager
Treppen-Aufzugsturm als Verbindung zu dem tiefer gelegenen Bestandsgebäude
Neubau einer Behindertenwerkstatt zur Verarbeitung von Papierwerkstoffen
Treppenturm mit Aufzugssacht
Neubau einer Behindertenwerkstatt zur Verarbeitung von Papierwerkstoffen
Werkstatt für 60 Personen
Neubau Haranni-Clinik, Herne, Ausführungsplanung und Bauleitung
Rotunde / Eingang
Neubau Haranni-Clinik, Herne, Ausführungsplanung und Bauleitung
Cafe / Bistro
Empfang Klinik
Wartezone
Wartezone
Neubau Haranni-Clinik, Herne, Ausführungsplanung und Bauleitung
Neubau Haranni-Clinik, Herne, Ausführungsplanung und Bauleitung
Neubau Haranni-Clinik, Herne, Ausführungsplanung und Bauleitung
Neubau Haranni-Clinik, Herne, Ausführungsplanung und Bauleitung
Neubau Haranni-Clinik, Herne, Ausführungsplanung und Bauleitung
Projekt: Hockeyclub
Aufstockung des Gebäudes in einem Vollgeschoss
Aufstockung des Gebäudes in einem Vollgeschoss
Aufstockung des Gebäudes in einem Vollgeschoss
Aufstockung des Gebäudes in einem Vollgeschoss
Aufstockung des Gebäudes in einem Vollgeschoss
Neubau einer Produktionshalle für Senkerodierungsprozesse
Neubau einer Produktionshalle für Senkerodierungsprozesse
Neubau einer Produktionshalle für Senkerodierungsprozesse
Gründungsphase mit aufwendigen Bodenentlüftungsmaßnahmen
Neubau einer Produktionshalle für Senkerodierungsprozesse
Aufbau der Stahlkonstruktion
Fluchttreppe aus dem Büroteil im OG
Ansicht der verschiedenen Gebäudeteile